Продам: Воздухонагревательная установка. - Купить: Воздухонагревательная установка., Тернополь - Продажа: Отопление, обогрев Тернополь - 253911

Объявление

Воздухонагревательная установка. - Отопление, обогрев

Продам, предлагаю - частное лицо: Отопление, обогрев, Украина, Тернополь и область
Назад к списку  Распечатать
Код: 253911 Создано: 13-01-2019 13:26

Цена: 11 000 грн. ₴

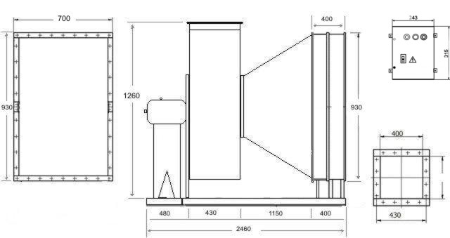
Предназначена для отопления, вентиляции, тепловых завес зданий промышленного назначения, гражданских зданий, офисов, магазинов, производственных помещений сельскохозяйственного назначения, сушильных установках, в приточных камерах, воздушно-тепловых завесах, рециркуляционных установках. Воздушно-тепловая установка состоит из водяного калорифера и радиального вентилятора , соединенных между собой конфузором через мягкую вставку. Ее принцип работы основан на сочетании радиального вентилятора и калорифера. Воздух, который находится в помещении попадает в калорифер, который нагревает его до определенной температуры. Затем теплый воздух разгоняется лопастями вентилятора, после чего прямым потоком отправляется в вентиляционную систему воздуховодов обогреваемого помещения. В данных установках тепловым носителем является перегретая вода, температура которой достигает 190 градусов, с давление до 1,2 мПа. За счет теплового носителя эта установка считается самой надежной и экономичной, имея простую конструкцию и высокую степень безопасности. У нее достаточно высокие показатели производительности и качества обогрева. Установка состоит из калорифера и радиального вентилятора аналог (ВР 80-75-6,3). Они соединены между собой с помощью конфузора через мягкую вставку и смонтированы на сварной раме. Блоком управления предназначены для управления электродвигателями вентиляторов воздушно-отопительных агрегатов. Установка воздухонагревательная с радиальным вентилятором изготовлена по всем стандартам. Она является наиболее экономичным решением в области отопления. Монтаж данной установки достаточно прост. Она не требует специального обслуживания и ухода. Габаритные размеры установоки (в/д/ш-мм); 1260*2650*950 1 - калорифер ; 930*700*200 - 2 шт. 2 - конфузор ; 900*1150*670 3 - мягкая вставка; 4 - вентилятор; 5 - рама 6 - блок управления воздушно-отопительных агрегата. 7 - воздуховод - распределение воздуха по площади помещения. Мощность/ обороты двигателя вентилятора - 3,0/1500 Произво-дительность по воздуху, м3/час - 8000 Произво-дительность по теплу*, кВт - 210 кВт Сайт: http://noviteh.promdex.com


Картинки

Реклама

Контактные данные

Имя: Ігор
 
Мобильный телефон: (097)27-25-119
 

Задать вопрос владельцу объявления

Email *
 
Повторите e-mail адрес *
 
Контактная информация
Имя:  
Контактный телефон:  
Мобильный телефон:  
Ваше сообщение будет отправлено на email адрес владельца объявления.: *



Реклама






FreeAds.in.ua - бесплатные объявления Украины

Доска объявлений Украины - AdMir.com.ua

Строительный портал ДивоСтрой Украины - divostroi.com.ua





Наша кнопка:
еКомиссионка

Код кнопки